供应商:
凭证公司谋划需要,币游国际官网现面向社会果真招标跑步机产线装备,现追求资质齐全、服务优质的供应商举行营业合作,接待切合资质要求的公司加入投标。
一、招标项目概述
1. 项目名称:跑步机产线采购项目。
2. 项目所在:币游国际官网
3. 采购内容:装备类清单,详细参数要求拜见附件装备采购手艺要求

4. 采购方法:果真招标或约请招标;招标阻止日期:2025年1月4日 16:00。
5.付款方法:预付款30%+进度款30%(到工厂)+验收款30%+尾款10%(可议)。
6. 投标包管金: 2万元,投标前三日内缴纳到指定账号。招标竣事后,未中标单位,包管金在三日内退还,中标单位在合作满一个月退却还。
7. 本条约包不接受团结体投标,中标后不得转包;
8. 用度预算:待定。
二、投标人资质要求
1. 投标人须是具有自力法人资格或其他组织、有能力提供招标货物及服务的企业;
2. 企业注册时间三年及以上;
3. 投标的产品及服务必需切合国家和行业的相关划定和规范;
4. 投标人具有相关产品的质量系统认证证书;单位认真人为统一人或者保存控股、管理关系的差别单位,不得加入统一项目投标;
5.在近三年投标运动中、供货条约推行、售后服务及产品运行历程中,未受到币游国际官网或其子公司的转达品评或投诉、未泛起过清静事故或重大问题;
6.投标人赞成在从开标之日起90天的投标有用期内严酷遵守本投标书的各项允许。限期届满之前,投标文件始终对投标人具有约束力。
7.投标人泛起以下情形,招标人有权扣除投标人投标包管金:
7.1围标、串标;
7.2不推行投标允许或者中标不推行;
7.3伪造证实、证书、条约等相关证件;
7.4其他违反本次招标书约定要求或国家招投标有关执律例则。
三、投标文件要求
1. 企业营业执照副本、资质证书副本等资质证实文件复印件并加盖公章。
2. 法定代表人身份证实书或法定代表人授权委托书。
3. 详细的手艺和服务计划,包括详细的手艺性能指标,以及售后服务包管等。。
4. 报价单,明确各项用度明细
四、招标文件获取
1、招标文件发放:本项目接纳全流程电子招投标方法,投标人原则上应当在本公司官网上注册成为潜在供应商,由本公司完成资格初审后才华登录招标系统加入后续的电子招投标事情。注册网址 http://120.27.20.14/el.html?c=2cVykmMH3W0
2、完成资格初审的供应商(投标人)请使用注册时的用户名和密码后登录招标平台提倡投标。
五、开标、评标与中标
评标委员会将凭证招标文件划定的评标要领和标准对投标文件举行评审。
最终诠释权归币游国际官网评标委员会。
联系方法
联系人:吕录成
邮箱:zhangyongan@sportsoul.com
电话:18100372262
附件:装备采购手艺要求
主体要求:
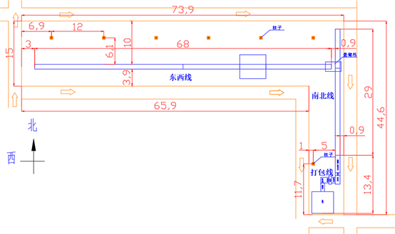
1.产线全长111.4米,高度800mm,宽度1100mm,用于跑步机组装包装生产,配套跑步机工艺生产所需静音房、插座、空调、打包机、码垛机械手、平衡吊等配套设施;
2.产线共分3段,工具线、南北线及打包线,工具线与南北线由平衡吊衔接,工具线为板链线,南北线为滚杠线。
3.工具线链板上均布万能插座,局部生产段带电运行,可实现220V/110V变压,详细位置见的分段手艺要求。
4.打包段实现产品全自动“井”字打包要求,其中一台凭证纸箱宽度大于即是1米,另外一台知足纸箱宽度1.7米,可同时兼容单向多道打包方法。
5.线体不会对产品造成磕碰、划伤等危险;
6.产线上方设置灯架,照明要求500lux-750lux,特殊位置除外(详见产线简图);
7.产线上方安排SOP看板(A3塑封板);
8.整体线体电压:三相五线制380V;
9.线速率要求:0 ~5m/min;
10.切合国家相关执律例则,不属于国家高耗能落伍机电装备(产品);

图 1 整体结构图
工具线要求:

图 2 工具线整体结构图

图 3 组装段整体结构图
c、平台区域照明要求750lux-1000lux。

图 4 老化段整体结构图

图 5 静音测试段结构图

图 6 包装段结构图
平衡吊手艺要求:

图 7 悬臂吊手柄图
南北线手艺要求:

图 8 南北线结构图
打包段手艺要求:

图 9 打包段结构图
